Dom mieszkalny, jednorodzinny, dla 4-6 osobowej rodziny, wygodny i funkcjonalny, nad salonem pustka, salon widoczny jest z antresoli, poddasze użytkowe do wykorzystania na pracownie lub sypialnie
4
Dom mieszkalny, jednorodzinny, dla 4-6 osobowej rodziny, wygodny i funkcjonalny, nad salonem pustka, salon widoczny jest z antresoli, poddasze użytkowe do wykorzystania na pracownie lub sypialnie
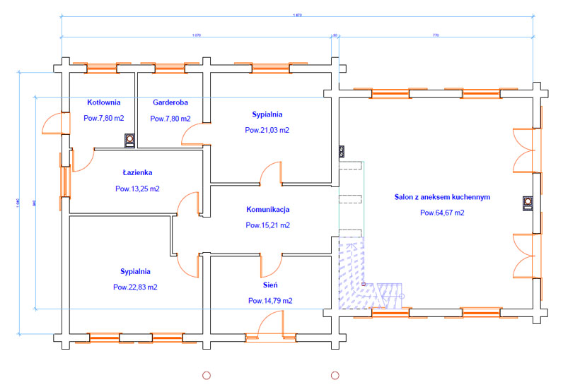
| Zestawienie pomieszczeń: |
| Kotłownia | 7,80 m kw. |
| Salon z aneksem kuchennym | 64,67 m kw. |
| Łazienka | 13,25 m kw. |
| Sypialnia | 22,83 m kw. |
| Sypialnia | 21,03 m kw. |
| Komunikacja | 15,21m kw. |
| Sień | 14,79 m kw. |
| Garderoba | 7,80 m kw. |
| Poddasze | 86,42 m kw. |
| Taras | 16,4 m kw. |
| Powierzchnia całkowita: | 253,8 m kw. |