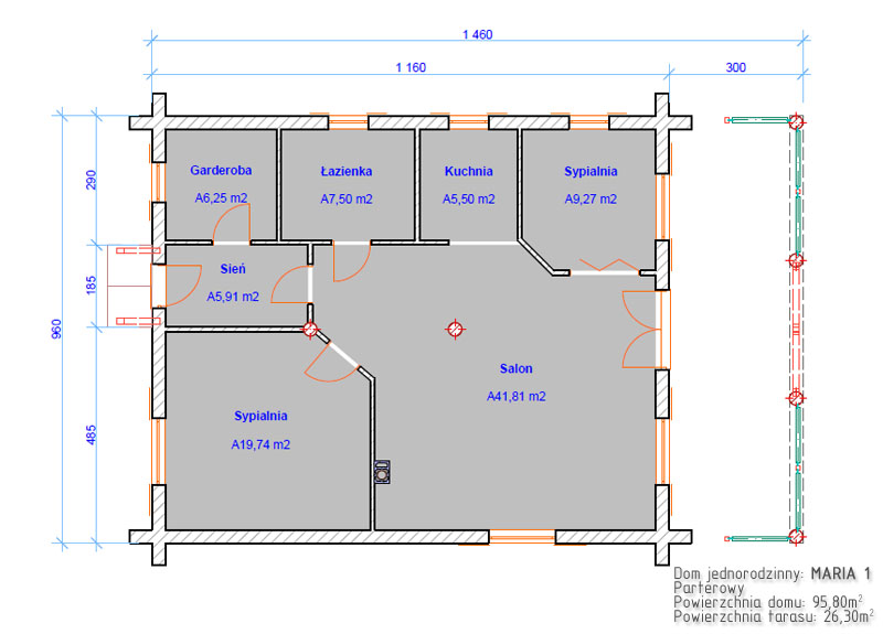
Dom parterowy przewidziany dla 3-4 osobowej rodziny z dwoma sypialniami i obszernym salonem.
2
Dom parterowy przewidziany dla 3-4 osobowej rodziny z dwoma sypialniami i obszernym salonem.
| Zestawienie pomieszczeń: |
| Garderoba | 6,25 m kw. |
| Kuchnia | 5,50 m kw. |
| Łazienka | 7,50 m kw. |
| Sień | 5,91 m kw. |
| Salon | 41,81 m kw. |
| Sypialnia | 9,27 m kw. |
| Sypialnia | 19,74 m kw. |
| Powierzchnia całkowita: | 95,99 m kw. |