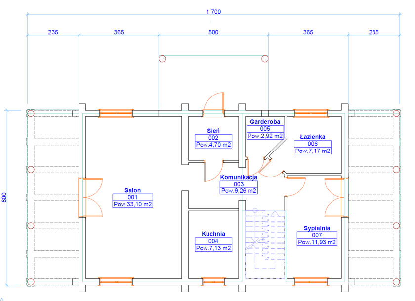
Dom z poddaszem mieszkalnym oraz dwoma tarasami w bryle budynku, przewidziany dla dużej rodziny. Każda sypialnia ma wyjście na taras lub balkon.
7
Dom z poddaszem mieszkalnym oraz dwoma tarasami w bryle budynku, przewidziany dla dużej rodziny. Każda sypialnia ma wyjście na taras lub balkon.
| Zestawienie pomieszczeń: |
| Salon | 33,10 m kw. |
| Sień | 4,70 m kw. |
| Łazienka | 8,03 m kw. |
| Komunikacja | 9,26 m kw. |
| Kuchnia | 7,13 m kw. |
| Garderoba | 2,58 m kw. |
| Łazienka | 7,29 m kw. |
| Sypialnia | 11,93 m kw. |
| Powierzchnia całkowita: | 76,21 m kw. |
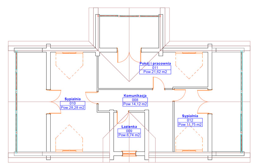
| Komunikacja | 14,12 m kw. |
| Łazienka | 6,74 m kw. |
| Sypialnia | 28,28 m kw. |
| Pokój i pracownia | 21,26 m kw. |
| Sypialnia | 11,75 m kw. |
| Poddasze razem: | 82,52 m kw. |
| Cały budynek bez tarasu: | 158,73 m kw. |